Bridge View Lane, West Rasen

 

For Sale £575,000

4 bedroom house - detached in West Rasen, Lincolnshire

4

2

2

Key Features

  • Detached Cottage in 2.04 Acres
  • Wonderful Riverside Location
  • Triple plus Single Garages
  • Large Barn (29'2 x 17'9)
  • Two Stables plus Tack Room
  • Workshop and Tool Store
  • Two Receptions & Conservatory
  • Kitchen/Breakfast & Boot Room
  • Four Bedrooms, Two Bathrooms
  • Paddock, Gardens & Abundant Parking

Set behind the ‘Packhorse Bridge’ a Grade II Listed Ironstone Bridge, this unique Cottage is sits in Grounds, including Gardens and a Paddock of around 2.04 acres,. It has Two Stables, Tack Room, Barn (29’2 x 17’9), Triple Garage, Additional Single Garage, Workshop and Tool Store plus a Timber Workshop, there is also parking for numerous vehicles. Riding out can be found via Toft Lane, heading towards Faldingworth or via Clay Lane around Toft Newton Reservoir towards Saxby. There is a footpath which runs alongside the River Rase and leads to Middle Rasen where there is a Local Shop and Post Office, Pub, Primary School and a vibrant and active village community. Anyone who needs a wider selection of ‘every day’ amenities can find them in Market Rasen around three miles distance and include Leisure Centre, Pubs, Bars, Tesco Supermarket, Co-op Food Store and De Aston Secondary School. There is also the new Aldi Supermarket and will soon be joined by a new Starbucks.

The cottage has been extended over many decades and now has very well proportioned rooms which are heated by Oil Fired Central Heating and the warmth is retained with the help of uPVC double glazing plus a Log Burner and Open Fire for cosy Autumn and Winter evenings in.

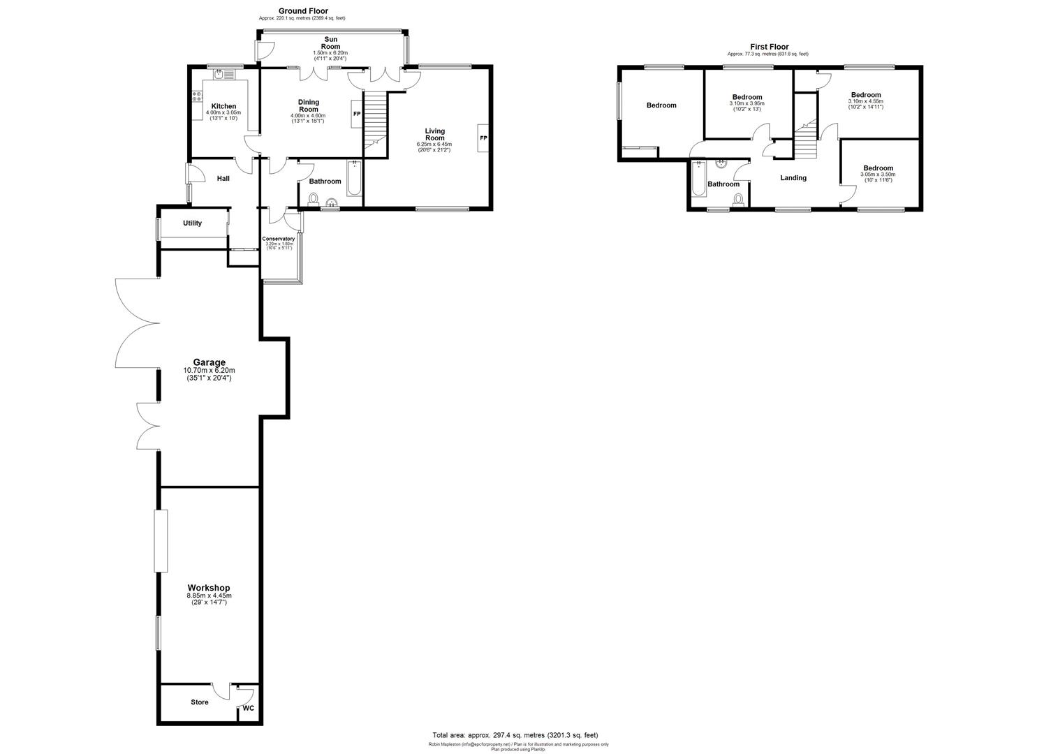
Accommodation comprises in brief: Entrance Porch/Sun Room, Hall, Living Room, Separate Sitting or Dining Room, Kitchen and Breakfast Room, Boot Room, Boiler Room, Inner Hall with Ground Floor Re-Fitted Bathroom and Conservatory off. On the First Floor there is a Spacious Landing, Four Double Bedrooms and Second Re-Fitted Bathroom.

The Grounds and Outbuildings are what this home is really about, it has Abundant Parking, Barn with large barn door, suitable for larger vehicles and in total is set in around 2.04 acres


Entrance Porch/Sun Room - 1.40m x 6.15m (4'7 x 20'2)

Approached through uPVC panelled entrance door. Coving. Windows to front and side. Two pairs of single glazed inner doors to Hallway and Separate Sitting/Dining Room.

Separate Sitting/Dining Room - 4.06m x 4.14m min (13'4 x 13'7 min)

Log burner with brick surround and beam. Coving. Double radiator. White panel effect doors to Hall, Kitchen/Breakfast Room and Inner Hall.

Hall -

Stairs to first floor. Door to:-

Living Room - 6.02m x 4.55m average - plus recess (19'9 x 14'11

Open fire stone effect surround. Coving. Windows to front and rear. Coving. Ceiling rose.

Kitchen/Breakfast Room - 4.01m x 3.05m (13'2 x 10'0)

Cream coloured wall and base units. Wood effect work-surfaces with inset single drainer sink top. Wall mounted, double opening glass cabinet. Window to front. Tiled splashbacks. Coving. Built-in electric oven, hob and extractor. Double radiator. Door to:-

Boot Room - 2.13m x 2.74m (7'0 x 9'0)

Window to side. uPVC half panel and half double glazed door to driveway. Archway to:-

Boiler Room - 1.55m x 1.65m (5'01 x 5'5)

Oil fired boiler. Built-in cupboard. Sliding door to:-

Utility Room - 1.73m x 2.77m (5'8 x 9'1)

Fitted wall and base units. Roll top work-surfaces with inset single drainer sink top. Window to side. Tiled splashbacks.

Inner Hall - 1.75m x 2.13m (5'9 x 7'0)

Door to Bathroom and glazed door to:-

Conservatory - 3.10m x 1.65m (10'2 x 5'5)

Windows to side and rear.

Re-Fitted Bathroom -

White suite of bath having shower and screen over. Wash hand basin in vanity in white high-gloss finish with double cupboard. Low level W.C. Wood effect tiled floor. Tiled to coving height with mosaic effect border tiles. Window to rear. White heated towel rail.

First Floor Landing - 1.68m min x 4.45m plus 3.38m x 0.81m (5'6 min x 14

Window to rear. Double radiator. Storage cupboard. White panel effect doors off.

Bedroom One - 2.97m x 4.65m plus wardrobe (9'9 x 15'3 plus wardr

Walk-in wardrobe with light. Radiator. Window to front. Panel effect finish to one feature wall.

Bedroom Two - 4.09m x 3.66m (13'5 x 12'0)

Fitted cupboards. Windows to front and side. Radiator.

Bedroom Three - 2.90m x 3.48m (9'6 x 11'5)

Window to rear. Radiator. Coving.

Bedroom Four - 3.18m x 3.68m min (10'5 x 12'1 min)

Access to loft. Radiator. Window to front.

Re-Fitted Bathroom -

White suite of panelled bath having shower over. Pedestal wash basin. Low level W.C. ‘Metro’ style tiling to water sensitive areas. Window.

Front Garden -

Approached through double opening ranch style gates. Expanse of lawn. Mature shrubs and trees. Driveway providing parking for umpteen cars or vehicles with hedgerow screening.

Triple Garage - 10.57m x 4.70m plus recess (34'8 x 15'5 plus reces

Approached by one pair of double sliding doors and a separate pair of double opening timber doors. Door to rear garden. Light and electric. Cold water supply.

Additional Single Garage - 4.32m x 3.51m (14'2 x 11'6)

Light and electric. Up and over door. Interlinking door to:-

Workshop - 5.26m x 0.30m 1.35m (17'3 x 1 4'5)

Window to front. Light and electric. Loft. Door to:-

Tool Store - 3.25m x 1.65m (10'8 x 5'5)

Door to Adjoining W.C. having W.C. and wash basin.

Lean-To Timber Workshop -

Stables and Tack Room -

Stable One: 15’6 x 8’4
Stable Two: 15’8 x 9’3
Tack Room: 15’4 x 6’9

Electric.

Barn - 8.89m x 5.41m (29'2 x 17'9)

Approached through large timber door. Up and over garage door to rear/paddock Light.

Rear Garden -

Mainly laid to lawn.

Additional Information -

Tenure: Freehold
Services: Mains Electric and Water. BT Internet. Oil fired heating. Septic Tank
Council Tax Band: E – West Lindsey
EPC Rating: E
Agents Note: This home’s septic tank is non compliant with modern regulations but has been taken into account when the property was priced for sale.

Download Brochure

Download EPC

How much is your property or land worth?

Free, no-obligation valuation for all properties or land in Lincolnshire and surrounding areas

Book a valuation

Newsletter

Sign up to receive our latest news and property updates.

© 2025 Perkins George Mawer & Co.

Corn Exchange Chambers, Queen Street, Market Rasen, Lincolnshire LN8 3EH

Website by Yello