Building Plot – Willingham by Stow, Gainsborough

 

For Sale £125,000

land for sale in Gainsborough, Lincolnshire

Key Features

  • Outline Planning Permission (ref: WL/2024/00953)
  • Single Storey Dwelling
  • Popular Lincolnshire Village
  • Ideal self build or developer project

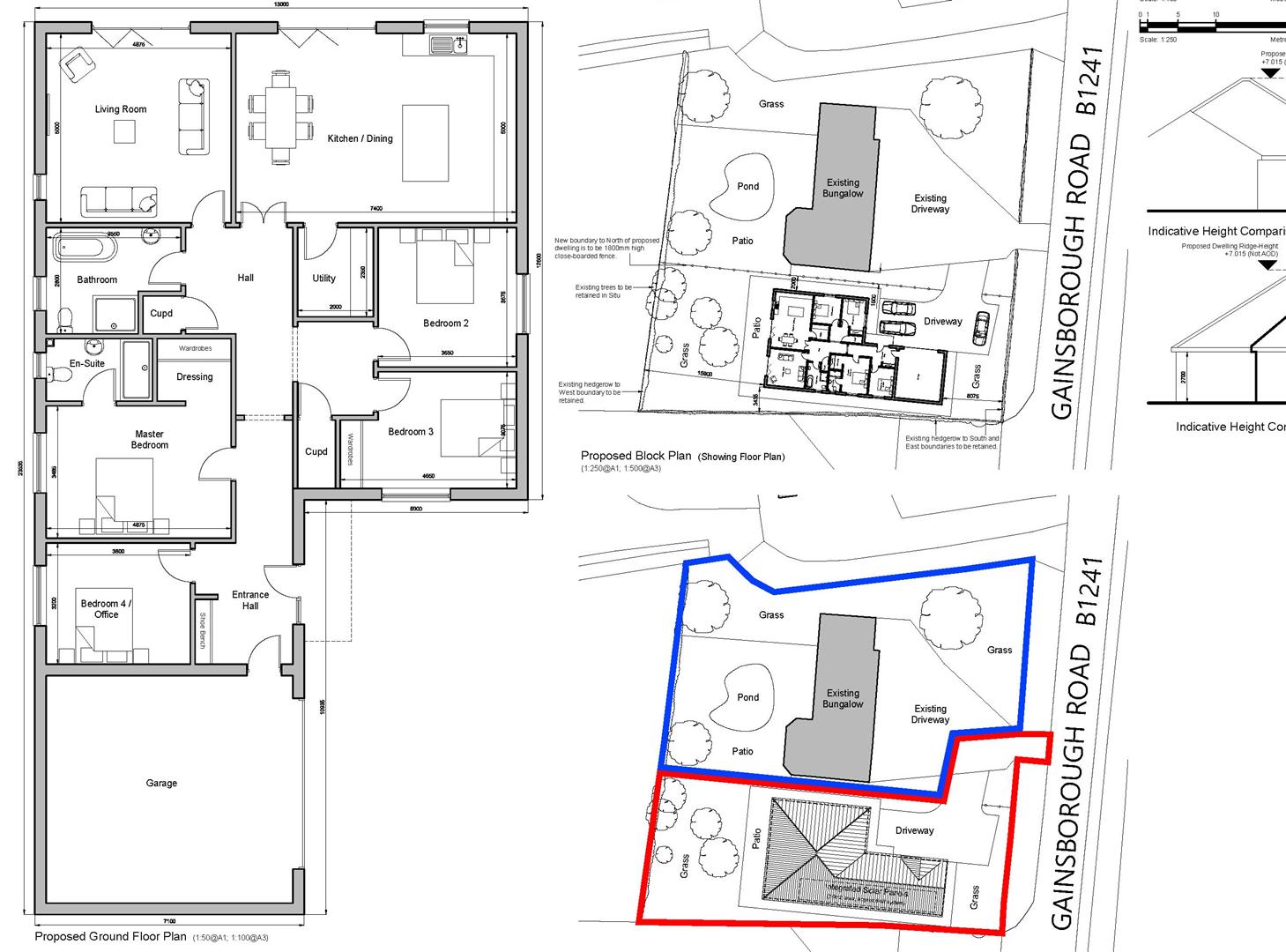
Unique opportunity to purchase a building plot in the charming village of Willingham by Stow, Gainsborough. The land benefits from Outline Planning Permission to erect 1no. single storey dwelling and presents a unique opportunity for those looking to create their dream home.


Location -

The land lies on the B1242 Gainsborough Road in the village of Willingham by Stow, which is located 6 miles south of Gainsborough and approximately 12 miles north west of the City of Lincoln. The property is situation between the A156 and A15 offering convenient transport links. Willingham by Stow itself offers a village shop and pub, and Sturton Primary School is a short distance away.

Description -

The property has the benefit of outline planning permission having been granted for a single storey dwelling with off road parking and highway access. The plot’s village location north of the main village setting setting provides a wonderful backdrop, with views over open countryside.

This unique opportunity not only offers the potential for a bespoke living space but also the promise of a rural lifestyle.

Planning -

Planning permission has been granted by West Lindsey District Council (WLDC) Ref: WL/2024/00953, dated 07/07/2025 for the erection of 1no. single storey dwelling. The development is to be carried out in accordance with details shown on the approved plans (shown for indicative purposes in these Particulars of Sale). Access, layout and scale to be considered.

Further information can be obtained via the WLDC planning portal or via the selling agent.

Environmental -

The Planning Permission (PP) stipulates that no development must take place until a written Ecological Mitigation & Enhancement Plan (EMEP) has been submitted and approved by the local planning authority.

The PP also states that a Biodiversity Gain Plan must be prepared.

Services -

Mains water and electricity services are available in close proximity to the property. No services are to be laid for the provision of piped natural gas, as per the planning permission. In addition the outline PP makes reference to rainwater harvesting facilities and roof mounted solar PV panels.

Prospective purchasers are encouraged to satisfy themselves in this regard and other services

Community Infrastructure Levy (CIL) -

The CIL will be payable by the prospective purchaser where applicable.

Boundaries & Access -

New and existing boundaries and accesses are to be constructed and maintained by the purchaser in accordance with the planning documents.

The buyer(s) shall be deemed to have full knowledge of all boundaries and access and neither the seller nor the selling agent will be responsible for defining the boundaries or their ownership.

Areas & Plans -

The plans included with these Particulars of Sale are published for identification purposes only.

Buyer Identity Check -

Purchasers will be required to provide the necessary identification for the purposes of the anti-money laundering regulations.

Viewing -

Viewing is strictly by appointment through the Selling Agent.

Selling Agent -

PGM&CO (Market Rasen)
Elton Moulds / Molly Williams
E: elton@perkinsgeorgemawer.co.uk / molly@perkinsgeorgwmawer.co.uk
T: 01673 843011

Download Brochure

Download EPC

How much is your property or land worth?

Free, no-obligation valuation for all properties or land in Lincolnshire and surrounding areas

Book a valuation

Newsletter

Sign up to receive our latest news and property updates.

© 2026 Perkins George Mawer & Co.

Corn Exchange Chambers, Queen Street, Market Rasen, Lincolnshire LN8 3EH

Website by Yello