Gainsborough Road, Middle Rasen, Market Rasen

 

For Sale £150,000

land - building plot for sale in Market Rasen

Key Features

  • Two Building Plots Available
  • Outlines Plans for 4 Detached Houses
  • Plots 1 & 2 Currently Available
  • Close to Market Rasen
  • Popular Village

Situated on close to Market Rasen within in the popular village of Middle Rasen. It has a Local Pub, Village Hall, Playing Field, Primary School and General Store/Post Office . In the town centre itself there are good Secondary Schools, Tesco Supermarket, Co-op Food Store and a great selection of Independent shops and services, there is also a Railway Station for anyone needing to travel further afield.

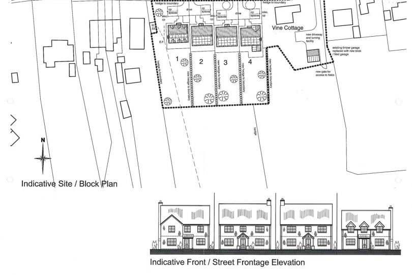
Plots 1 & 2 are available with Outline Planning Permission for Two Detached Houses – West Lindsey District Council Planning Number: 146322


Outline Planning -

Decision Issued Date: 22/02/2023 – Subject to the Particulars of Decision. A copy of the planning details are available from the Selling Agent or via the WLDC Planning Portal. – West Lindsey 146322 – Current Outline Planning Permission for Four Detached Houses on Four Plots, but only plots 1 & 2 currently being sold

Boundaries -

The buyer(s) shall be deemed to have full knowledge of all boundaries and neither the seller nor the selling agent will be responsible for defining the boundaries or their ownership. The purchaser will further be responsible for the southern boundary of the site.

Services -

Mains services are are believed to be in close proximity to the plot. Prospective purchasers should make their own enquiries in this regard.

Tenure & Possession -

The land is Freehold. Vacant Possession will be granted on Completion.

Method of Sale -

The Land is offered For Sale by Private Treaty as a Whole.

Plans -

The plans as published are for identification purposes only and are Not to Scale.

Buyer Identity Check -

Prospective buyers will be required to provide the necessary identification for the purposes of the Anti-Money Laundering regulations.

Viewing -

Prospective purchasers may view the plots during daylight hours with prior arrangement through ourselves at Perkins, George, Mawer & Co – 01673 843011 (Option 1).

Download Brochure

Download EPC

How much is your property or land worth?

Free, no-obligation valuation for all properties or land in Lincolnshire and surrounding areas

Book a valuation

Newsletter

Sign up to receive our latest news and property updates.

© 2026 Perkins George Mawer & Co.

Corn Exchange Chambers, Queen Street, Market Rasen, Lincolnshire LN8 3EH

Website by Yello