Gulham Lane, North Gulham, Market Rasen

 

For Sale £275,000

barn conversion in Market Rasen, Lincolnshire


Nestled in the charming village of North Gulham, Market Rasen, PGM&Co are pleased to present this spacious barn with the benefit of planning permission for development of five dwellings, making it an ideal investment and offering a blend of rural tranquillity and modern living.


Location -

Situated in a peaceful setting, North Gulham is well connected to nearby amenities and transport links. The next village is North Owersby which is situated between Caistor (6.6 miles) and Market Rasen (6.1 miles). The A46 lies about 1 mile to the east.

Primary Schooling is available in nearby Osgodby. There is Secondary School education in Market Rasen and Caistor. A good range of shops, doctors, leisure and amenity facilities are on offer at both Market Rasen and Caistor. Transport links are also good with access via the A46 to Lincoln, Grimsby, Scunthorpe and the Humber Bridge.

Description -

The barn is of steel portal frame construction with part brick part corrugated metal sheet walls, metal sheet roofing and a large hardstanding area to the south elevation.

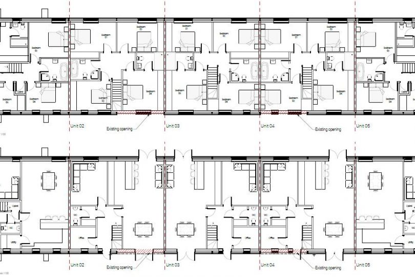
Once converted the proposed dwellings will each feature four spacious bedrooms, providing ample room for families and those who enjoy hosting guests. Each unit also has its own garden and outdoor space. The property includes designated parking, ensuring convenience for residents and visitors alike.

Planning -

The bar at North Gulham has the benefit of Prior Approval Planning Permission for the change of use if 1no. agricultural building to 5no. dwellings with associated operational development. Permission was granted by West Lindsey District Council (WLDC) Ref: WL/2024/01013, dated 27/01/2025.

The development is granted under Class Q and must be completed within a period of 3 years starting with the prior approval date.

Services -

Mains water and mains electricity have previously been available at the budling but have been disconnected. The services are therefore believed to be available in close proximity to the property. Prospective purchasers are encouraged to satisfy themselves in this regard.

Boundaries -

The buyer(s) shall be deemed to have full knowledge of all boundaries and neither the seller nor the selling agent will be responsible for defining the boundaries or their ownership.

Access -

The property is access via a private driveway off the highway ‘Thornton Road’ to the west. A right of way will be granted, to include a contribution towards maintenance.

Wayleaves, Easements & Rights of Way -

The property is offered for sale subject to all existing rights, including rights of way, whether public or private, light, support, drainage, water and electricity suppliers and other rights easements, quasi-easements and all wayleaves whether referred to in these particulars or not.

Plans -

Plans included within the Particulars of Sale are for identification purposes only and not to scale.

Tenure and Possession -

The property is offered for sale Freehold. Vacant Possession will be granted on completion.

Buyer Identity Check -

Purchasers will be required to provide the necessary identification for the purposes of the anti-money laundering regulations.

Viewing -

Prospective purchasers may view the Land during daylight hours with a set of these Particulars of Sale to hand.

Download Brochure

Download EPC

How much is your property or land worth?

Free, no-obligation valuation for all properties or land in Lincolnshire and surrounding areas

Book a valuation

Newsletter

Sign up to receive our latest news and property updates.

© 2026 Perkins George Mawer & Co.

Corn Exchange Chambers, Queen Street, Market Rasen, Lincolnshire LN8 3EH

Website by Yello