Rasen Road, Walesby, Market Rasen

 

For Sale £375,000

4 bedroom house - detached in Market Rasen, Lincolnshire

4

2

2

Key Features

  • Sought After Lincolnshire Wolds Village
  • Renovation Project
  • Over 0.5 Acre Plot
  • Planning Permission for Single Storey Extension

Nestled on in the charming Lincolnshire Wolds village of Walesby, PGM&CO are pleased to offer this detached house which presents a unique opportunity for those seeking a renovation project, with the added benefit of Planning Permission for a single storey extension.


Location -

Walesby is a popular village located at the foot of the Lincolnshire Wolds boasting several countryside walks. The town of Market Rasen is just 2.8 miles to the south and offers a range of amenities including primary and secondary schools, shops, pubs and leisure facilities. Caistor lies 7 miles to the north and also offers conveniences and transport links.

Description -

The property currently spans an impressive 2,400 ft2 (approximately), it boasts two reception rooms, kitchen and utility, as well as four well-proportioned bedrooms, presenting ample space for a growing family or for those who desire extra room for guests or a home office.

The property has been stripped back to bare brick, allowing for a blank canvas to create your dream home. Recent improvements include a repaired roof and gutters, as well as some underpinning, undertaken by the current owners.

For those looking to expand their living space, planning permission has already been granted for a single-storey extension, offering the potential to enhance the property further.

This home is ideal for buyers with a vision, ready to transform it into a modern masterpiece while retaining its character. With its prime location in Walesby, you will enjoy the tranquillity of village life while being within easy reach of Market Rasen’s amenities.

This is a rare opportunity to invest in a property with great potential, so do not miss out on making this house your own.

Accomodation -

Ground Floor -

The current ground floor layout briefly comprises: – Lounge, Dining Room, Kitchen with Utility and Pantry and W/C.

First Floor -

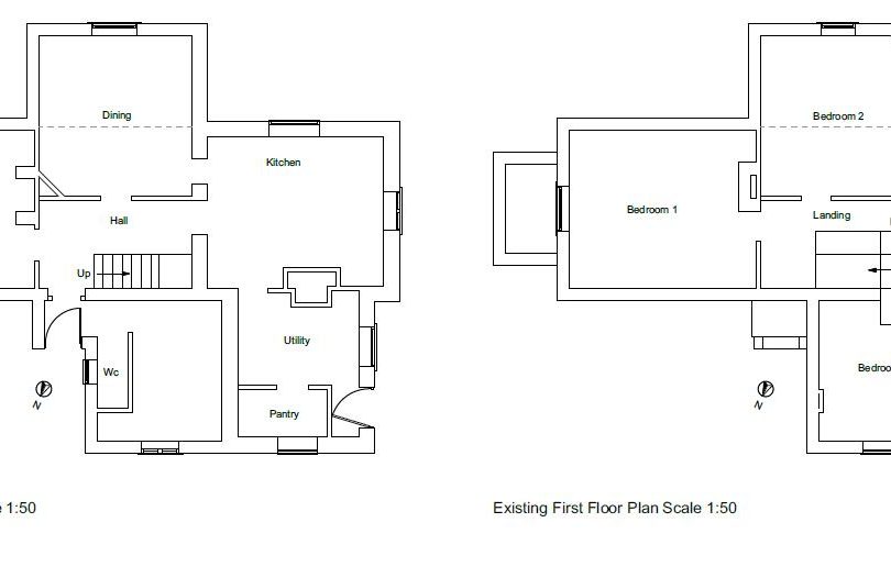
There are currently 4 spacious Bedrooms and a Family Bathroom.

Outside -

Currently set in mature grounds with tress and shrubbery, the half acre plot offers great scope of landscaping and opening up. With potential for a large driveway and ample parking.

Planning Permission -

The property has the benefit of Planning Permission granted for a single storey extension to the rear of the current footprint of Tudor Cottage. The extension will provide additional open plan living space and make full use of the versatile ground floor area.

Current Condition -

The current vendors have removed fittings and reverted the property back to bare brick. Repaired/replaced the roof, new gutters and facias. Some underpinning has also been completed.

Services -

The property has both mains water and mains electricity connected. Mains drainage is believed to be in existence. Prospective purchasers should make their own enquires regarding services.

Boundaries and Access -

Tudor Cottage benefits from direct highway access off Rasen Road.

The buyer(s) shall be deemed to have full knowledge of all boundaries and neither the seller nor the selling agent will be responsible for defining the boundaries or their ownership.

Plans and Areas -

The plans included with these Particulars of Sale are published for identification purposes only.

Buyer Identity Check -

Purchasers will be required to provide the necessary identification for the purposes of the anti-money laundering regulations.

Viewing -

Viewing is strictly by appointment through the Selling Agent.

Solicitor -

Burton & Dyson Solicitors
22 Market Pl, Gainsborough DN21 2BZ
T: 01427 610761

Download Brochure

Download EPC

How much is your property or land worth?

Free, no-obligation valuation for all properties or land in Lincolnshire and surrounding areas

Book a valuation

Newsletter

Sign up to receive our latest news and property updates.

© 2026 Perkins George Mawer & Co.

Corn Exchange Chambers, Queen Street, Market Rasen, Lincolnshire LN8 3EH

Website by Yello